O desenvolvimento dos macacos RB-E.F.E.M (Elevadores Ferroviários Eletro Mecânicos) tem como objetivo aplicar no manuseio seguro e preciso de cargas os conceitos mais avançados das transmissões mecânicas desta natureza.
Descrição do Produto
Objetivo
O desenvolvimento dos macacos RB-E.F.E.M (Elevadores Ferroviários Eletro Mecânicos) tem como objetivo aplicar no manuseio seguro e preciso de cargas os conceitos mais avançados das transmissões mecânicas desta natureza.
Funcionalidades
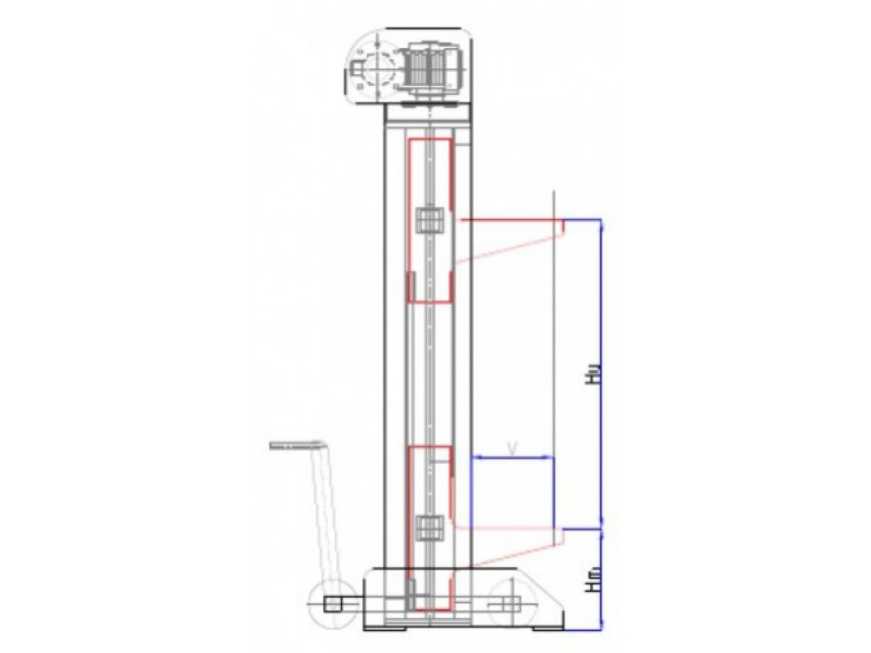
Incorporando conceitos das maquinas operatrizes, substituímos as guias rodantes do martelo (rodeiros) sobre estruturas abertas atualmente utilizadas por guias planas de alta durabilidade e grande precisão, solução que permite uma aplicação, em ambiente controlado, do mecanismo porca/parafuso padrão.
A substituição dos rodeiros por guias planas muda o conceito de contato linear (geratrizes das rodas sobre as estruturas) para o superficial (contato das placas sobre as guias) o que minimiza os desgastes e aperfeiçoa a funcionalidade melhorando a mantenibilidade do equipamento.
Esta configuração diminui o número de elementos mecânicos do equipamento, simplificando a construção e garantindo sua funcionalidade.
O parafuso trabalha a tração, guiado entre pontas e suportado por rolamentos axiais.
A porca, para garantir o ajuste funcional com o parafuso na sua posição de trabalho, é montada em uma travessa de aço fundido, articulada sobre buchas de alta resistência auto lubrificadas nos suportes da estrutura do martelo.
O acionamento (força e controle) acontece através de um moto-redutor, montado na parte superior da estrutura, comandado por variadores de velocidade e ajuste de posição via ?encoder?, o que garante, quando necessário, o sincronismo destes macacos trabalhando de forma simultânea com outras unidades, mesmo a diferentes alturas.
A parada funcional, em posição determinada, ou emergencial é controlada por freio a disco sobre o eixo de entrada do redutor.
A carenagem do macaco isola os mecanismos do meio ambiente evitando poeiras e sujeiras de qualquer natureza.
Os macacos podem ser fornecido com unidades de auto-lubrificação, com lubrificação central ou manual por pontos, conforme solicitação do cliente.
Pelas características construtivas é um equipamento que demanda mínima manutenção, com peças de fácil reposição.
Se for necessário o controle de deslocamentos temos alternativas de ?movimento preciso?, via central de comando e ?regra laser?.
A estrutura metal mecânica do equipamento é estabilizada durante sua construção para garantir as características dimensionais das guias durante a vida útil do mesmo.
·Velocidade de elevação/descenso ? ajustável entre 300mm/min e 500mm/min.
· Pode ser sincronizada durante operações com múltiplos elevadores operando em diferentes pontos da plataforma. (2, 4, 6, 8.)
Sinalizadores visuais e ou sonoros de operação, são instalados conforme necessidade ou demanda do Cliente
PROPRIEDADES DOS ELEVADORES
Modelo
Capacidade
[Ton]
Altura de elevação [mm]
Volteio da base (v) [mm]
Fuso
(tr.din 103)
Potencia disponível
Kw
Fator de Segurança
Hm [mm]
Hu [mm]
RB-EFEM-5
5,0
500
2000
400
Ø42 x7
1,25
f?=1.75
RB-EFEM-10
10,0
600
2000
500
Ø58 x9
1.75
f?=1.75
RB-EFEM-15
15,0
750
2500
500
Ø58 x9
2.50
f?=1.75
RB-EFEM-25
25,0
900
2500
600
Ø75 x 12
5,00
f?=1.75
RB-EFEM-50
50,0
900
2500
600
Ø100x 12
7.50
f?=1.75
RB-EFEM-75
75,0
900
2800
600
Ø110 x 12
10,00
f?=1.50
RB-EFEM-100
100,0
1000
2800
600
Ø140 x 16
12.50
f?=1.50
Termos e Condições
Termos e Condições
Bem-vindo ao website Deu Pé - Produtos Ortopédicos, onde todos os serviços são ofertados por meio da pessoa física Deu Pé Ortopédicos, inscrito sob o CPF nº 001.235.196-24, e RG nº M9999999, endereço eletrônico contato@deupe.com.br, com endereço para receber notificações na Rua José Cambraia do Nascimento 390 - Havaí - CEP 30570-230 - Belo Horizonte, MG, representado nessa página eletrônica.
Avisamos previamente que ao acessar esse site você concorda tacitamente com as disposições contidas nesse documento, por isso muito atenção ao ler cada uma das cláusulas e obrigações dispostas a seguir:
1.Do Objeto
Essa plataforma tem como finalidade de "e-commerce", ou seja, disponibilizar a venda de produtos e serviços online disponibilizados na nossa plataforma ou aplicativo. Este documento foi criado pelo advogado Diego Castro e modificado com permissão para este website.
2. Da reserva de produtos
2.1 O nosso website não trabalha com nenhuma possibilidade de reservar qualquer um dos produtos ofertados em nossa plataforma.
2.2 O fato de o produto estar no carrinho de compras não é tido como uma reserva e não impossibilita que outras pessoas possam adquirir o produto e eles venham a se esgotar.
3. Das obrigações do cliente
3.1 O cliente deverá informar os dados de forma completa e correta no momento de cadastro em nossa plataforma.
3.2 É responsabilidade do cliente qualquer erro na escrita ou na transmissão errônea dos dados.
3.3 Para efetuar qualquer compra em nosso website ou adicionar produtos ao carrinho é necessário logar com o usuário e senha que foi fornecido no momento do cadastro.
3.4 Não informar os seus dados de login a terceiros sob pena de ser responsabilizado por qualquer conduta advinda desse uso.
3.5 Cada cliente só poderá efetuar um cadastro, não sendo aceito mais de uma conta por CPF.
3.6 Usar a plataforma respeitando a ética, bons costumes, legislações e ordenamentos vigentes no país, sob pena de sofrer sanções.
3.7 Ser maior de idade (18 anos) e ter capacidade plena para realizar o cadastro e efetuar compras em nossa plataforma.
3.7.1 Se um menor de idade ou pessoa física sem capacidade plena vir a adquirir algum produto ou serviço ofertado em nossa plataforma, entenderemos que os responsáveis autorizaram, respondendo esses por toda e qualquer situação que advir, bem como pela compra.
3.8 Não comentar ou enviar imagens nas avaliações que possam ir de encontro com a ética e o respeito, ou que tenha cunho difamatório, ofensivo, de ódio ou preconceituoso.
3.9 O primeiro login de acesso será feito através de um link enviado para o seu e-mail cadastrado.
3.10 Não fornecer qualquer informação falsa, fraudulenta ou que não seja correspondente aos seus dados.
4. Das obrigações do proprietário do e-commerce
4.1 Informar de forma ostensiva e verdadeira sobre as características e especificações do produto disponível para venda de forma clara e completa. ( Ex: Cores, altura, material ou largura).
4.2 Enviar os produtos dentro do prazo estabelecido.
4.3 Disponibilizar uma plataforma segura.
4.4 Disponibilizar imagens, áudios e vídeos informativos sobre os produtos ofertados, e condizentes com o que será entregue ao cliente.
4.5 Emitir a nota fiscal do produto que será enviado e enviá-la ao cliente junto do produto.
4.6 Informar como deve ocorrer o manuseio, a limpeza ou lavagem do produto e qualquer informação considerada relevante relacionada ao produto.
5. Isenção de responsabilidade
5.1 Não nos responsabilizamos pelo mau uso ou manuseio errado do produto, bem como de qualquer dano que possa ocorrer na instalação de qualquer produto adquirido em nossa plataforma.
5.2 Todos os produtos que vendemos estão dentro dos padrões e condições que vem de fábrica, do distribuidor ou da empresa que revendeu o produto.
5.3 Fornecemos todas as informações pertinentes relacionadas ao produto, bem como os mesmos vão acompanhados de instruções de uso e cuidados em suas caixas ou através de manual de instruções.
6. Da Propriedade intelectual
6.1 Todo o design e paginação são de propriedade do nosso website, e foram desenvolvidos por um prestador de serviços que foi contratado para tal finalidade.
6.2 Toda imagem, ilustração, obras de arte, HTML, nomes comerciais, softwares ou vídeo disponibilizados em nossa plataforma por um dos gerenciadores da página são de nossa propriedade.
6.2.1 As imagens e vídeos são meramente ilustrativas, pois dependendo do monitor ou da tela do aparelho eletrônico o mesmo pode apresentar variação de cores ou tons.
6.3 A logo, a marca e toda a aparência da webempresa/empresa são de nossa propriedade.
6.4 É vedada a cópia sem autorização de qualquer imagem, vídeo, design, áudios, aparência ou descrições de produtos existentes em nossa web página, sob pena se responder por sanções quem desobedecer.
6.5 Não nos responsabilizamos por links externos que possam vir a aparecer em nossa página.
6.5.1 Há algumas áreas que poderão apresentar propagandas ou divulgação de links, mas não temos qualquer tipo de relação, por isso muito cuidado ao navegar por essas páginas e ao fornecer os seus dados, pois navegar por essas páginas é responsabilidade do usuário/cliente.
6.6 Nada contido em nossa web página garante o direito a concessão de licença ou direito de uso sem o consentimento expresso de um dos gerenciadores da página ou do proprietário da página.
6.7 O consentimento de cópia ou compartilhamento deve vir por escrito de forma clara e expressa.
6.8 É vedado compartilhar, copiar, plagiar ou disponibilizar qualquer conteúdo, foto, vídeo ou áudio encontrado em nosso site sem consentimento expresso.
7. Formas de pagamento
7.1 As formas de pagamento aceitas em nosso e-commerce são cartão de crédito e débito, ou boleto bancário.
7.2 O boleto bancário poderá ser emitido no momento em que você escolheu a opção, preencheu os dados requisitados e gerou.
7.2.1 O boleto tem vencimento na data exposta no mesmo, não sendo aceito após a data de vencimento.
7.2.2 Se o boleto vencer e o pagamento não tiver sido efetuado, o produto voltará a ficar disponível para venda e será necessário realizar uma nova compra para adquiri-lo.
7.3 O produto será enviado assim que o pagamento for processado, registrado e confirmado em nossa plataforma.
7.4 Qualquer outra forma de pagamento não é aceita por nosso e-commerce.
7.5 Cupons de descontos são aceitos, desde que tenhamos disponibilizados, estando sujeitos a esgotarem ou terem vigência cancelada a qualquer momento.
7.5 Se o cliente quiser parcelar o produto em mais vezes deverá arcar com os juros da operadora.
7.6 Para solicitar o estorno entre em contato com a nossa Central de Atendimento ou SAC.
8. Entrega e envio do produto
8.1 O produto será enviado assim que o pagamento for confirmado, podendo ser enviado até 3 dias após a confirmação do pagamento.
8.2 Os custos de envio e entrega estarão dispostos no momento em que você estiver quase finalizando a compra, na aba de frete/entrega/envio, onde você informará o seu endereço e CEP.
8.3 O cliente pagará pela entrega e o envio do produto com faixas pré-definidas, ou de acordo com o peso padrão da categoria.
9. Troca e devolução
9.1 O cliente poderá devolver o produto ou trocar que foi adquirido em nosso e-commerce em até 7 dias, seja qual for a razão, conforme a previsão expressa no Código de Defesa do Consumidor em seu art. 49.
9.1.1 Para que ocorra a troca ou a devolução é necessário que o produto esteja conforme foi entregue, com todos os acessórios, manual e embalagem, caixa.
9.1.2 O produto que será devolvido ou trocado não poderá apresentar qualquer marca de uso, como o produto estar trincado, riscado ou apresentar sinais de quedas.
9.2 Se você requisitou a troca do produto o novo será enviado para o endereço e você será notificado sobre o envio via e-mail.
9.3 Se você solicitou o reembolso, a devolução do valor ocorrerá da forma como foi efetuado o pagamento.
9.3.1 Se foi via cartão de crédito ou débito o valor será creditado ou debitado na fatura atual ou na seguinte do cartão, pois informaremos a administradora do cartão.
9.3.2 Se o pagamento foi feito via boleto bancário, o valor de reembolso será restituído dentro de 30 dias úteis diretamente na conta que solicitaremos no momento de sua requisição de devolução.
10. Política de Privacidade e Proteção de Dados
10.1 Você pode conferir a nossa política de privacidade no link de rodapé, onde informamos como ocorre a coleta e o tratamentos dos dados cadastrados em nosso site, bem como da navegação.
11. Do Foro
11. Fica eleito o foro da Cidade da nossa empresa, para dirimir quaisquer controvérsias, dúvidas, desentendimentos, litígios ou questões advindas da relação cliente e e-commerce, mesmo que possa existir algum local, por mais privilegiado que possa ser.
12. Do documento
12.1 Este documento foi feito pelo Advogado Diego Castro (OAB/PI 15.613) e foi modificado com permissão para uso neste site.
Política de privacidade e segurança
Política de privacidade e segurança
Conforme as normas previstas na Lei 13.709/18, que versa sobre a proteção de dados e as demais legislações pertinentes, apresentamos a Política de Privacidade e Segurança do Deu Pé - Produtos Ortopédicos.
Este documento é vinculado e integra as Condições e Termos de Uso deste site, sendo passível de alteração a qualquer momento para adequação em regras estabelecidas pelas legislações que estabelecem o modo de tratamento dos dados.
O acesso, visita e permanência neste site/blog é de livre escolha e acontece conforme a vontade/desejo do usuário, sendo sua visita e prosseguimento no site, escolha deste usuário.
Ficando ciente por meio deste documento que a partir do momento em que mantém o acesso e a permanência em qualquer uma das nossas páginas está automaticamente demonstrando estar de acordo, de forma explicita com todas as regras e termos trazidos na Política de Privacidade e Segurança descrita abaixo.
Sendo seu direito a qualquer momento entrar em contato conosco para maiores informações do que aqui foi descrito, bem como esclarecimento de dúvidas que possam vir a existir.
O site www.deupe.com.br, foi criado em 01/09/2022 e é de inteira propriedade Deu Pé Ortopédicos.
Esta Política de Privacidade foi modificado em 05 de outubro de 2022, criado pelo Advogado Diego Castro, e utilizada com autorização neste site.
Informações Gerais:
Nosso site se compromete a cumprir e respeitar os princípios previstos no art. 6º da Lei Geral de Proteção de dados, estando eles abaixo elencados e esclarecidos conforme ao tratamento de dados realizado por este site/blog:
I – Princípio da Finalidade: Este site/blog respeita o que prevê o princípio da finalidade trazido na legislação supracitada, realizando o tratamento com finalidade legítima e específica, informando por meio desta Política de Privacidade e Segurança de forma explicita, aos titulares dos dados que serão tratados o motivo do tratamento. Nenhum tratamento será realizado de forma incompatível com as finalidades que serão informadas neste documento.
II – Principio da Necessidade: Coletamos e tratamos apenas os dados necessários para a realização das finalidades explicitas do nosso site, com o compromisso de coletar e tratar o mínimo de informações do usuário do nosso site. Utilizamos apenas as informações/dados pertinentes, proporcionais com a a atividade desempenhada por nós, sem exceder nenhum limite na relação existente entre o usuário e o nosso site/blog, sendo todo e qualquer dado coletado e tratado conforme as finalidades estabelecidas em nossas páginas.
III – Principio da Adequação: Todo tratamento realizado em nossas páginas é compatível com as finalidades informadas para o usuário/cliente, respectivo titular dos dados, não sendo realizado nenhum tipo de ação ou mecanismo que seja não condizente e desrespeite o contexto de tratamento necessário.
IV – Não discriminação: Os dados que coletamos, armazenamos e que realizamos qualquer tipo de tratamento não são utilizados para nenhum fim discriminatório, vexatório, ilícito ou abusivo.
V – Principio da Qualidade dos dados: Garantimos aos titulares dos dados clareza e relevância no momento da coleta e do tratamento dos dados, além da possibilidade de atualização, conforme se fizer necessário para que seja cumprida a finalidade do tratamento, conforme a atividade que for realizada pelo usuário/cliente em nosso site.
VI –Principio do Livre Acesso: Esclarecemos por meio desta Política de Privacidade e Segurança que garantimos a todos os titulares de dados que realizamos o tratamento, a consulta de maneira gratuita e fácil, a qualquer momento em que desejarem, por meio de um canal específico, sobre o tratamento realizado com os seus dados, assim como qualquer informação referente aos dados coletados, podendo inclusive acontecer atualização dos dados pessoais do titular, sem que a necessidade de qualquer requisição por parte do nosso site.
VII – Principio da Prevenção: Adotamos e zelamos pela prevenção de todo e qualquer ato que possa gerar dano aos dados coletados dos usuários/cliente, com medidas implantadas em busca de prevenir qualquer situação incomoda, ilegal, ou que gere qualquer espécie de prejuízo/dano aos dados pessoais que realizamos tratamos.
VIII – Principio daTransparência: Trabalhamos com clareza, precisão, exatidão e veracidade em todas as informações trazidas sobre o tratamento de dados, sendo o seu acesso fácil e disponível ao usuário/cliente nesta Política de Privacidade, bem como nos Termos de Uso no nosso site/blog. As informações respectivas aos agentes de tratamento seguem o mesmo critério de transparência acima elencados. Todas as informações trazidas sobre o tratamento e os agentes de tratamento respeitam os segredos comerciais e industriais.
IX – Principio da Segurança: Informamos que utilizamos todas as medidas cabíveis e possíveis na seara técnica e administrativa, visando a maior proteção dos dados pessoais, desde o momento em que temos acesso a eles. As técnicas utilizadas buscam proteger os dados pessoais de todo e qualquer acesso não autorizado, bem como de situações que possam causar danos ao titular dos dados, ainda que acidentais ou ilícitas. As técnicas que utilizamos buscam trazer segurança e proteção ao titular dos dados que realizamos o tratamento, visto que são tomadas em busca de prevenir e proteger as informações coletadas de qualquer situação ilícita de perda, destruição, compartilhamento, comunicação ou difusão não autorizada.
X – Principio da responsabilização e prestação de contas: O agente irá demonstrar e comprovar que cumpre e respeita todas as normas cabíveis a Proteção de Dados Pessoais, adotando medidas adequadas para isso de maneira eficaz. O nosso site realiza todas as etapas referentes ao tratamento de dados pessoais dos usuários/clientes que o acessam, sem desrespeitar qualquer norma ou princípio presente na Lei 13.709/2018, tendo de forma clara e objetiva o fundamento da finalidade para o tratamento de cada informação pessoal coletada.
Sobre o Nosso site/blog
Nosso site/blog possuí textos, vídeos, imagens, áudios, e-books, bem como os demais conteúdos que você poderá visualizar ao acessar nossas abas, todos sem nenhum teor discriminatório, ilícito ou difamatório.
Traçamos planos e metas a serem seguidos para apresentar um conteúdo de valor, com informações relevantes referente ao tema aqui abordado.
Assumimos o compromisso por meio deste documento de proporcionar o melhor resultado no momento da navegação do nosso usuário/cliente, nos comprometendo a agir e trabalhar com total segurança e respeitando a privacidade dos dados pessoais tratados.
Tenha atenção a todas as informações disponibilizadas nesta página, pois é por meio dela que trazemos de forma clara e direta como acontecem todas as etapas de tratamento das informações pessoais coletadas, inclusive deixando claro o compartilhamento e divulgação (em alguns casos) que realizamos com parceiros.
A qualquer momento esta Política de Privacidade e Segurança poderá ser modificada, conforme atualizações normativas ou alterações em nossa Política Interna, razão pela qual convidamos ao (a) nosso (a) usuário (a)/ cliente a consultar este documento periodicamente para que tenham ciência imediata de qualquer alteração que venha a acontecer.
Informações sobre o controlador e Responsável pelo Tratamento de dados
Conforme previsão do art. 5º da Lei Geral de Proteção de dados trazemos aqui informações sobre o controlador definido pela legislação “in verbis”:
Art. 5º, VI – controlador: pessoa natural ou jurídica, de direito público ou privado, a quem competem as decisões referentes ao tratamento de dados pessoais;
Deu Pé - Produtos Ortopédicos tem como CONTROLADOR e responsável por definir e tomar qualquer decisão referente ao tratamento de dados realizado por nós e por nossa equipe o Sr. Deu Pé Ortopédicos.
O CONTROLADOR é um profissional/empresa de nossa inteira confiança, que está ciente de todas as normas trazidas na legislação que realiza a proteção de dados, além de ter total ciência e conhecimento das normas estabelecidas na nossa Política Interna.
Já o tratamento de dados coletados em nosso site é realizado pelo Sr. Deu Pé Ortopédicos
Informações sobre o Conteúdo do site/blog e Classificação Indicativa:
O conteúdo trazido é direcionado para pessoas que tenham interesse, curiosidade ou busquem informações a respeito do conteúdo do nosso site.
Todo conteúdo abordado em nossas páginas é produzido por nossa equipe ou por parceiros, respeitando as legislações nacionais, bem como, os valores éticos e humanos, além dos princípios morais, zelando pela transparência e veracidade em todas as informações trazidas.
Nosso conteúdo pode ser encontrado no Google, Yahoo ou outros buscadores, além de ser indicado por sites especializados, como o Eletro Críticas.
O nosso site, bem como o seu conteúdo e os parceiros são indicados para pessoas com idade a partir de 18 anos.
Caso você não tenha 18 anos de idade completos tenha ciência de que é necessário permissão do seu responsável para você ter acesso aos conteúdos trazidos em nossas páginas, sendo de total responsabilidade DO RESPONSÁVEL pelo menor de idade o acesso ao nosso material, bem como os conteúdos trazidos por nossos parceiros.
Sobre o tratamento de dados:
Nosso site trabalha com determinadas operações e funcionalidades das quais se fazem necessárias o tratamento de dados pessoais, desde a etapa da sua coleta até a sua eliminação, ou armazenamento, como será discorrido abaixo:
Da coleta de dados:
Realizamos a coleta de dados dos usuários/visitantes/clientes do nosso site não apenas para realização dos serviços que prestamos, como também por segurança, já que qualquer ato irregular ou ilícito praticado por ele poderá ser passível de consequências especificas para o responsável.
A utilização de determinadas funções do nosso site depende expressamente da coleta de dados dos usuários como: nome, telefone de contato, e-mail, bem como os demais dados cabíveis para a finalidade que se apresenta no site.
A Coleta de Dados pode acontecer por todas as áreas do nosso site/blog, uma vez que ela acontece por meio do preenchimento de formulários, FAQ, envio de dúvidas, Chat ou cadastro.
Cientificamos ainda, que ao preencher formulário/FAQ/Cadastro ou qualquer tipo de área referente ao retorno de contato ou duvidas em nosso site, assim como o ACEITE dos COOKIES que utilizamos, O USUÁRIO /CLIENTE demonstra A CONCORDÂNCIA de forma objetiva, clara e expressa da coleta e tratamento de seus dados que será realizada pelo site/equipe do site/ parceiros do site respeitando todas as normas de proteção aos dados pessoais.
É indispensável ainda, informarmos que trabalhamos com ferramenta de análise de dados (analytics ou similar) para monitorar os resultados de acessos, comentários, entre outras informações sobre o desempenho do nosso site/blog.
Outros dados
Nosso site também realiza a coleta e o tratamento de dados referentes ao dispositivo e vinculados ao registro de acesso.
Dados do dispositivo: Coletamos dados vinculados ao dispositivo que acessa ao nosso site, principalmente por motivo de segurança – dados como: modelo do hardware, sistema operacional, identificadores de dispositivo (localização e etc.).
Registros de Acesso: Coletamos e tratamos ações vinculadas ao uso de dados, desde a sua inclusão, até a exclusão de dados, IP do usuário/cliente, data (dia/mês/ano), hora do acesso realizado.
Dados de navegação: Realizamos a coleta e o tratamento de dados relativos à navegação, assim podemos desempenhar uma melhor experiencia para o usuário/cliente – navegador onde o usuário realizou o acesso e páginas acessadas.
Forma de coleta de dados
A coleta de dados dos nossos usuários/cliente acontece respeitando todos os princípios e normas trazidos na Lei Geral de Proteção de Dados, com a condição expressa de consentimento livre e espontâneo do usuário para isso, visto que não realizamos nenhum tratamento sem permissão do usuário/cliente ou seu responsável.
Não utilizamos nenhum meio coercivo, autoritário, opressor, repressivo ou abusivo em busca de receber o consentimento do usuário para o tratamento de seus dados.
A tabela abaixo informa como acontece a coleta dos dados:
Dado
Como acontece a coleta
Dados pessoais do usuário
Coletados por meio de formulários.
Dados do dispositivo
Coletados/Transmitidos/Transferidos pelo acesso ao serviço que acontece por meio da internet
Registro de acesso
Coletado/Transmitidos/Transferidos pelo acesso ao serviço que acontece por meio da internet
Dados de navegação
Coletados por meio de cookies durante a navegação no site.
A coleta de dados pessoais pode acontecer em diversos locais, páginas e abas do nosso site, por meio de preenchimento de formulários, FAQS, chat e cadastros necessários para o envio de materiais, realização de compras ou envio de informações.
O registro de acesso, os dados do dispositivo são coletados para a segurança do usuário/cliente bem como do proprietário do site e toda a sua equipe por meio do acesso ao serviço que disponibilizamos, que acontece no momento do acesso a nossa página.
Como buscamos conhecer melhor o nosso público trabalhamos com alguns mecanismos e plataformas que realizam a coleta de dados de nossos usuários/cliente automaticamente diretamente pelo sistema, sendo respeitadas todas as regras da LGPD, assim como a privacidade do usuário, proporcionando todos os meios técnicos e administrativos de segurança.
Dados de navegação são coletados pelos nossos cookies a partir do momento em que se inicia a navegação no nosso site/blog.
Finalidade do tratamento dos dados pessoais
Todos os dados que realizamos tratamentos são utilizados respeitando os princípios da Lei Geral de Proteção de Dados, principalmente o da finalidade, adequação e necessidade, sendo mantidos apenas em nosso sistema até o momento em que a sua finalidade continuar a existir.
Dado/Informações
Finalidade
Dados do usuário/cliente
Identificar o usuário/cliente para a finalidade de cadastro/envio de materiais/respostas de dúvidas/envio de novidades e etc.
Dados do dispositivo
Trazer um melhor acesso ao usuário, pois através dos dados coletados podemos adequar melhor o site/blog ao dispositivo/navegador do usuário/cliente
Registro de Acesso
Por meio destes dados proporcionamos maior segurança aos proprietários do site e aos usuários, pois assim podemos identificar qualquer ato que aconteça dentro do nosso site/blog
Informações de Navegação
Através dessas informações conhecemos melhor o nosso usuário, podendo passar-lhe conteúdo que ele tem interesse, bem como indicar serviço dos nossos parceiros que ele demonstre preferência, que serão encontradas por meio das páginas que ele mais acessou.
Os dados dos usuários são coletados e tratados unicamente com a finalidade para qual eles são fornecidos, sendo explicito em cada parte do nosso site/blog para o que servirá o dado fornecido seja por meio de cadastro, FAQ, envio de formulários, envios de novidades e etc.
Os dados do dispositivo são tratados para que possamos proporcionar a melhor experiência no seu acesso ao site, uma vez que é por meio dele que podemos adequar a visualização do site/blog ao dispositivo/navegador utilizado.
Os registros de acesso são itens imprescindíveis no momento da realização de coleta e tratamento realizado pelo nosso site/blog, pois é por meio dele que podemos proporcionar maior segurança para os usuários e para a nossa equipe, uma vez que por meio desses dados pode identificar informações como endereço de IP, data, hora, atividade realizada e etc., em qualquer área do nosso site/blog, podendo objetivar qualquer ato ilícito que possa vir a acontecer.
As informações de navegação são a melhor forma de trazer conteúdo nosso e dos nossos parceiros para você, pois é através das informações de navegação que dividimos para cada usuário notícias, publicidades entre outros materiais de sua preferência. Essa preferência é objetivada pelos dados encontrados em páginas mais acessadas pelo usuário/cliente.
Tratamento realizado nos dados
O tratamento de dados realizados no nosso site/blog respeita todas as normas previstas na legislação de proteção de dados, tendo base legal para ser realizado, acontecendo apenas com consentimento do usuário.
Todos os dados tratados são disponíveis para alteração e atualização a qualquer momento, inclusive durante todo o seu armazenamento.
Todos os dados coletados serão armazenados durante 10 anos podendo ser alterado conforme a necessidade do serviço prestado, ou por motivo de qualquer disposição que possa vir a existir.
Veja a descrição do modo de tratamento realizado na tabela abaixo:
Coleta, armazenamento, processamento, compartilhamento, comunicação de informações de dispositivos que visitam nosso site/blog
Dados de Navegação
Coleta, armazenamento, processamento, compartilhamento, comunicação de informações vinculadas as preferências e comportamento do usuário/visitante que acessa ao nosso site/blog.
Dados não coletados
Respeitando os princípios contidos no início desta Política de Privacidade e Segurança não realizamos a coleta de nenhum dado que não seja necessário para os serviços que prestamos, ou que tenha finalidade diversa das informadas.
Não coletamos dados sensíveis, exceto em casos onde houver determinação legal para isso, sendo informado o usuário de forma expressa da necessidade de tratamento caso venha a existir, bem como o tratamento que será realizado com ele.
Compartilhamento/divulgação/publicação dos dados coletados
Respeitamos todos os limites previstos na Lei Geral de Proteção de dados referentes ao compartilhamento/divulgação ou publicação de dados coletados por nós, agindo de boa-fé e moralmente sem nenhuma intenção de causar dano ao nosso usuário/cliente.
Os dados serão compartilhados apenas com parceiros, se necessário, sendo ciente o usuário de que concede o compartilhamento dos seus dados ao aceitar preencher formulários em nosso site/blog em troca de materiais gratuitos.
Os dados coletados e compartilhados conforme informação mencionada acima podem gerar retorno monetário ao proprietário e a equipe do site/blog, visto que ao preencher formulários em troca de materiais torna-se direito deste site/blog compartilhar as informações fornecidas em busca de gerar renda para manter este projeto.
Em casos previstos em leis, boletim, ou caso recebamos algum tipo de determinação de autoridade pública ou por meio de alguma determinação regulatória é realizado o compartilhamento de dados, a publicação ou divulgação.
O titular tem direito de permitir o compartilhamento e o acesso de seus dados a um terceiro, desde que informe de maneira expressa a permissão que deu ao titular.
Em situações onde somos informados que há investigação criminal ao ser requisitada cooperação do nosso site, deixamos cientes os nossos usuários/clientes que cooperamos do modo como nos for requisitado.
Sobre os nossos parceiros
Todos os parceiros que trabalham conosco respeitam as normas previstas na Lei Geral de Proteção de Dados, bem como as demais legislações que tratam sobre esse assunto.
Informamos que o nosso site contém links e hiperlinks de nossos parceiros, ao clicar em algum desses links ou hiperlinks você é direcionado a um site externo, que não possui nenhum vínculo com o nosso site, tendo Política de Privacidade e Segurança, Política Interna e Termos de Uso diferente dos nossos.
Não temos nenhum poder ou informações para discorrer do modo como acontece o tratamento de dados pelos nossos parceiros, por isso busque conhecer a Política de Privacidade, Termos de Uso, bem como os demais documentos que versam sobre o tratamento de dados deles.
Sobre a nossa Equipe
Nossa equipe tem ciência de todos os mecanismos técnicos e administrativos que devem ser utilizados no tratamento de dados, pois informamos em nossa Política Interna, conhecida por todos os nossos colaboradores o modo como deve acontecer todas as etapas do tratamento de dados, respeitando a privacidade e todas as normas trazidas na Lei 13.709/18.
OBS: Toda equipe que trabalha conosco tem conhecimento de todas as práticas e técnicas que devem ser utilizadas no tratamento dos dados que coletamos, pois todos tiveram e continuam a ter acesso a nossa Política Interna e Política de Governança, bem como possuem treinamentos específicos para isso, sendo que qualquer ato (realizado por alguém que participe da nossa equipe) considerado ilícito ou danoso ao titular de dados gerara responsabilização direta e será motivo cabível para demissão com justa causa.
Segurança no Tratamento de Dados
O nosso site tem o compromisso de realizar toda e qualquer medida técnica, administrativa e institucional referente a proteção de dados pessoais.
As técnicas de segurança utilizadas protegem os dados do usuário/cliente de acessos por terceiros não autorizados, bem como de qualquer ocasião que possa trazer algum tipo de modificação, destruição, difusão, compartilhamento, divulgação, comunicação dos dados sem autorização e desrespeitando a Lei Geral de Proteção de Dados.
Todas as medidas de proteção e segurança são tomadas especificadamente para o dado coletado, respeitando o contexto e a finalidade que essa informação possui.
O nosso siteaplica criptografia e/ou firewall proporcionando assim a transmissão de maneira segura, privativa e confidencial.
As transmissões que acontecem entre o transmissor e o usuário/clientes acontecem de maneira totalmente cifrada, em busca de proteger os dados coletados.
Nós se compromete a avisar ao titular dos dados de qualquer violação ou acesso suspeito que possa causar algum risco de dano aos direitos e liberdades pessoais do titular.
Disponibilizamos o canal de comunicação no final deste texto para que o nosso usuário/cliente possa informar qualquer situação que identifique falha, vulnerabilidade na segurança ou defeito na realização do tratamento dos dados coletados.
Cookies e Newlestter
Os cookies são arquivos que possuem tamanhos pequenos e são enviados pelo nosso site ao seu computador, para que assim possamos armazenar informações de navegação e os dados do usuário/cliente necessários para o serviço que desempenhamos.
Os cookies são o meio pelo qual realizamos o registro de dados e preferenciais dos nossos usuários/clientes de modo rápido para que possamos proporcionar uma experiência adequada ao ser realizado o acesso a nossa página, trazendo inclusive serviços relacionados as pesquisas que você faz em nosso site/blog.
Informamos ainda, que nem todos os cookies trazidos neste site/blog realiza a coleta e o armazenamento de dados pessoais, visto que alguns dos cookies trazidos são utilizados para o desempenho de algum dos serviços que prestamos.
A “newlestter” é o meio pelo qual notificamos e informamos os nossos usuários/clientes de qualquer atualização que realizamos.
Os dados informados para a “newlestter” são utilizados apenas com essa finalidade, sem qualquer destinação contrária ou que desrespeite a legislação de Proteção de Dados.
Você não é obrigado a aceitar os “cookies” ou a “newlestter”, é de sua livre escolha optar ou não pelo registro de “cookies”, caso não deseje que ele aconteça, utilize a opção em seu navegador/ aparelho de desativação do registro de cookies.
Informamos que a desativação dos cookies pode lhe trazer uma experiência incompleta ou com falhas na sua visita ao nosso site/blog, além de não trazer o desempenho correto das ferramentas e funções que disponibilizamos em nossas páginas.
A desativação dos cookies pode ocasionar ainda prejuízos na prestação do nosso serviço fim, bem como, em alguns casos não poderemos lhe proporcionar uma experiência mais adequada as suas preferências pois não teremos acesso a elas.
Tratamento de dados para outras finalidades
Respeitando o que prevê a Lei Geral de Proteção de Dados informamos aos nossos usuários/cliente que podemos realizar o tratamento de seus dados para finalidades diversas posteriormente, sem que isso cause qualquer dano ou desrespeito ao titular dos dados, informando abaixo a finalidade de uso posterior das informações coletadas.
As informações que coletamos sobre o titular, dispositivo, navegação, localização e etc., podem continuar a ser utilizadas para que desenvolvamos a prestação de serviços mais aprimorados e de uma melhor experiência para o usuário/cliente em nossa página.
Caso o titular dos dados requeira a exclusão de seus dados pode entrar em contato conosco pelo e-mail informado nesta Política de Privacidade.
Após o requerimento do titular na exclusão de seus dados acontecer, anonimizaremos os dados, sendo que esses continuarão em nossos arquivos de modo anonimizado, podendo ser utilizados futuramente com a finalidade de pesquisa, geração de estatísticas, divulgação de informações especificas, e ainda, em publicações.
Consentimento do usuário
O usuário/cliente ao acessar o nosso site/blog demonstra está de acordo com todas as informações contidas em nossa Política de Privacidade e Termos de Uso, bem como concede de livre e espontânea vontade que seus dados sejam tratados pela nossa equipe respeitando os princípios da finalidade, necessidade e adequação.
É livre o consentimento do usuário/cliente, uma vez que não utilizamos de nenhum meio de coação, obrigatoriedade, indução, constrangimento, ameaça ou imposição para que o usuário/cliente conceda e permita que seja realizado o tratamento de seus dados.
Eliminação de dados
Caso o usuário/cliente não permita o armazenamento de seus dados, pode entrar em contato conosco por meio dos canais de contato abaixo:
E-mail: contato@deupe.com.br
Telefone: (31) 9.8497-3233
Após o requerimento de eliminação de dados, temos o prazo de 30 dias para que os dados sejam eliminados ou anonimizados.
Canais de Contato e encarregado
Disponibilizamos canais de contato para o nosso usuário/cliente em busca de termos um relacionamento claro e cordial, nos disponibilizando para esclarecer qualquer dúvida sobre o nosso site, bem como sobre o modo como realizamos o tratamento de seus dados.
Buscamos por meio desse profissional ter uma comunicação melhor e mais direta com os nossos usuários/clientes.
Disponibilizamos abaixo Canais de Atendimento para você poder entrar em contato com o nosso responsável pelo controle de dados: Deu Pé Ortopédicos
E-mail: contato@deupe.com.br
Telefone: (31) 9.8497-3233
Esta Política de Privacidade e Segurança passa a ter validade a partir de 05 de outubro de 2022 com validade indeterminada.
Política de Cookies
Política de Cookies
Este documento possui a finalidade de estabelecer alguns parâmetros para tratamento de dados que incluem, não taxativamente, a recepção, transmissão, compartilhamento, armazenamento, acesso, comunicação, modificação ou transferência das informações coletadas de nossos USUÁRIOS, além de registrar toda e qualquer atividade realizada dentro da plataforma, de acordo com a legislação aplicável.
O USUÁRIO confere sua livre e expressa concordância perante este instrumento ao aceitar essa POLÍTICA DE COOKIES.
1 – GLOSSÁRIO
1.1 – Para melhorar o desempenho e sua experiência em nosso site, utilizamos cookies, devendo ser consideradas as seguintes definições acerca desta Política:
COOKIES – São arquivos de texto criados pelo site e armazenados no dispositivo que acessa a plataforma. (notebooks, tablets, smartphones, etc. ). Quando a condição de “permissão” estiver habilitada, o armazenamento de cookies ocorrerá de forma automática. Estes pequenos pacotes de dados visam identificar e coletar as informações do USUÁRIO para aprimorar os serviços do nosso site.
DADOS:Conjunto de informações anônimas (ou dados anonimizados) e pessoais.
DADOS ANONIMIZADOS: Informações isoladas que não permite a identificação do USUÁRIO. Incluem a coleta de gênero, localização, idade, etc.
DADOS PESSOAIS: Informações da pessoa natural identificada por meio do sistema. Incluem nome, endereço, telefone, redes sociais, etc.
HIPERLINKS: Um link clicável que pode aparecer no site ou estar disposto em algum conteúdo, que direciona o USUÁRIO para outra página na plataforma ou site externo, seja parceiro ou não.
NAVEGAÇÃO:Ato de interagir, pesquisar, adquirir ou consumir algum material ou conteúdo em nossa plataforma, site ou aplicativo.
USUÁRIO: Visitantes do site que acessem independente do meio a nossa plataforma, site ou aplicativo.Deverá, necessariamente, ter capacidade legal para aceitar os termos e condições da presente Política de Cookies e demais documentos legais da plataforma.
Havendo dúvidas acerca de qualquer termo ou palavra empregada nesta Política de Cookies, o VISITANTE/ USUÁRIO poderá entrar em contato com a plataforma através dos nossos canais de comunicação.
2 – Coleta de dados
2.1 – A coleta de informações e dados de nossos USUÁRIOS ocorre na medida em que ele nos fornece, por meio de acesso e uso no site, clics em hiperlinks, interação nos aplicativos e serviços do site, suas preferências e referências.
2.2 – Os dados serão coletados:
quando o USUÁRIO inserir ou submeter voluntariamente suas informações na nossa plataformaou acessar algum serviço oferecido pelo site, também poderá ocorrer por meio da interação e navegação com o conteúdo exposto no website.
quando o USUÁRIO inserir ou submeter voluntariamente dados de terceiros no nosso site, uma vez declarada a autorização da utilização desses dados perante o site.
quando não necessariamente utilizar-se-á a ação do USUÁRIO, uma vez que a automatização do sistema se responsabiliza pela coleta de dados disponíveis por meio dos Cookies.
por meio de parceiros que tenham sido autorizados pelos nossos USUÁRIOS a compartilharem seus dados conosco.
2.3 – As informações coletadas podem incluir, não se limitando, os seguintes dados:
nome;
gênero;
endereço (por meio da geolocalização);
endereço de IP;
endereço de e-mail;
dados bancários (cartões de crédito, por exemplo.);
números de documentos (CPF, Carteira de Identidade, etc.)
data de nascimento;
informações de pagamento;
agenda de contatos;
dados biométricos;
links, hiperlinks e serviços clicados, etc.
2.4 – Os demais dados que podem ser objeto de coleta estão dispostos, também, na Política de Privacidade.
2.5 – Os cookies utilizados pelo nosso site e aplicaçõesestão condicionados à validade de sua coleta:
Cookies de sessão: permanece com o site até o mesmo ser fechado. As informações coletadas permitem a identificação de problemas e visam o fornecer melhores experiências aos USUÁRIOS.
Cookies permanentes: mesmo após o fechamento da plataforma, esses cookies ainda ficarão armazenados na memória do navegador de internet do dispositivo que você está acessando. São utilizados cada vez que o utilizador visita o website para orientar a navegação de acordo com as preferências pessoais, que são recolhidas através destes cookies.
2.6 – Os cookies utilizados podem ser tanto de titularidade própria, possuindo, a plataforma, total controle sobre os cookies; ou de titularidade de terceiros, incluídos nos dispositivos dos USUÁRIOS por meio dos sites, plataformas, hiperlinks, serviços e funções que possuímos parceria.
3 – Finalidade da coleta de Cookies:
3.1 – Nossos cookies possuem diferentes funções e finalidades, a seguir listamos os tipos que podem ser utilizados no nosso site.
cookies essenciais: necessários para que a plataforma funcione corretamente e forneça, perfeitamente, os serviços que estão disponíveis aos nossos USUÁRIOS. Sendo que, sob pena do mau funcionamento da plataforma, o website não será capaz de prestar, com eficiência, todas as ferramentas ou recursos a ele associado.
cookies de performance: responsável por coletar informações anônimas sobre como os USUÁRIOS usam e interagem com a plataforma e com as ferramentas fornecidas.
cookies de funcionalidade: associados à memória dos dados fornecidos, estes cookies permitem que a plataforma lembre das eventuais escolhas feitas pelo USUÁRIO, o direcionando às funções que o mesmo pode vir a optar. É responsável por proporcionar melhores experiências e garantir praticidade ao USUÁRIO. Essas informações também podem estar associadas aos dados anonimizados, que não irão rastrear a atividade do USUÁRIO fora do espaço da plataforma.
cookies analíticos: utilizamos estes cookies com a funcionalidade de monitorar e analisar com nossos USUÁRIOS usam as ferramentas e as funcionalidades da plataforma. Nos permitindo verificar eventuais falhas no site e proporcionar praticidade e customização para os USUÁRIOS. Além disso, baseados nesses cookies, podemos destacar os principais serviços ou artigos que pensamos ser de maior interesse de nossos USUÁRIOS.
cookies de publicidade: semelhante à coleta anterior, esses cookies visam direcionar a publicidade da plataforma em função das escolhas e das preferências de nossos USUÁRIOS, verificando o número de visitas, número de interação e qualidade desta. Estes cookies ajudam a plataforma Deu Pé - Produtos Ortopédicos a dimensionar a eficácia de sua publicidade.
cookies de segurança: evitando que os dados de nossos USUÁRIOS estejam vulneráveis a ataques maliciosos de terceiros, estes cookies armazenam as informações de modo criptografado.
cookies sociais: estabelecidos pelas plataformas de redes sociais e de comunicação, estes cookies permitem o compartilhamento do conteúdo acessado pelo USUÁRIO à nossa plataforma. A coleta fornecida por terceiros tem a capacidade de rastrear a atividade do USUÁRIO fora de sua linha de serviços, compartilhando com nossa plataforma, as suas preferências.
4 – Da autorização
4.1 – Depois de autorizada a utilização de cookies, o USUÁRIO tem a seu dispor a opção de desativá-los assim que tiver interesse, podendo optar, ainda, inativar parte ou a totalidades dos nossos cookies.
4.2 – A princípio, todos os dispositivos permitem que o utilizador aceite, recuse, apague ou administre cookies, através das funções do próprio programa do respectivo navegador. Podendo ser configurados, em geral, no menu “opções” ou “preferências”, dependendo do seu dispositivo.
4.3 – Lembramos que a função de desativar cookies não nos permite oferecer aos nossos USUÁRIOS a excelente prestação de serviço que objetivamos, já que partes de nossa plataforma podem apresentar instabilidades e não funcionar corretamente.
5 – Da legitimação do tratamento dos cookies
5.1 – Por consentimento do interessado, a Política de Cookies se aplicará aos dispositivos que autorizarem o acesso aos dados anonimizados e pessoais de nossos USUÁRIOS.
6 – Da comunicação dos dados
6.1 – Em via de regra, não se comunicarão os dados a terceiros, exceto em caso de cookies de propriedade de outros sites, por obrigação legal, ou por hiperlinks parceiros à nossa plataforma.
7 – Direitos do USUÁRIO
7.1 – Assistem ao USUÁRIO alguns direitos perante esta Política de Cookies, desde que o USUÁRIO tenha capacidade de interagir com o sistema da plataforma.
retirada de consentimento desta Política;
acesso, controle, retificação, limitação e oposição ao tratamento de seus dados;
contestar a utilização de seus dados junto aos administradores da plataforma, entrando em contato pela aba de contato.
Diante dos termos apresentados, o USUÁRIO dá o seu consentimento prévio, salvo indicação ao contrário, ao uso e utilização de “cookies”, perante a utilização do nosso site.
Esta Política de Cookies é valida a partir de 05 de outubro de 2022.